今回は、雨漏りでお困りの方からのお問い合わせをいただき
板金工事をさせていただきましたのでご紹介いたします!!
現場調査🔍
現場調査に伺ったところ、正面の破風板金から雨水が侵入していること、
箱樋の形状が小さく雨水がうまく排水されていないことが原因であることが分かりました💦
(雨量が多い場合に箱樋では雨水を受け止めきれず、溢れて室内に侵入してしまいます。)


正面の破風包み板金は風雨の影響を直接受けやすく、
コーキングの切れや釘の浮きが原因で雨水が侵入するケースが多いです✖️
調査報告
現場調査が終わり報告書と見積書を提出📝

今回当社は2つの対策工事をご提案させていただきました。
①谷樋を塞ぎ、
軒樋を取り付けて鎖り樋で落とす方法
💫メリット
確実な施工方法である
✖️デメリット
外観が変わる/費用がかかる
②谷樋を塞ぎ、樋を掛けない方法
💫メリット
見た目は今回の工事と変わらない
①より費用が抑えられる
✖️デメリット
屋根からの雨水が直接地面に落ちるため、
雨音が気になる
一つだけではなく、それぞれのメリット・デメリットを考慮しながら
施工方法をご提案させていただけるのも当社ジオプランの強み💪です!
今回はこの2つのご提案内容から、お客様のご要望をお伺いし
②谷樋を塞ぎ、樋を掛けない方法で工事をさせていただきました。
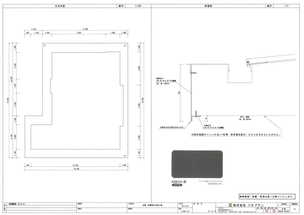
下端水切板金施工
まず初めに、下端水切板金を施工していきました。
外壁や屋根の一番下(下端)部分に取り付ける金属板で、
雨水や結露水を建物の外側に排出するための部材です📌



破風包み板金施工
下端水切板金施工完了後、破風包み板金を施工していきました。





破風包み板金が施工されたことで、より外観も引き締まった印象がありますね💡
箱樋清掃・シーリング処理
破風板金包み施工完了後、箱樋に板金で蓋をする前に清掃・シーリング処理を行いました。


谷樋のつなぎ目のコーキングがきれてしまうとそこから雨水が侵入してしまい
雨漏りの原因となる為、しっかりとシーリング処理をして対策をしました。

箱樋採寸・板金施工
箱樋清掃・シーリング処理完了後、既存の箱樋の採寸📐をし、
それに合わせて加工した板金を施工していきました。


採寸📐完了後、加工した板金を箱樋を塞ぐように施工していきました。

屋根材の重なりや隙間から雨水・雪・ほこり・虫が入り込むのを防ぐ為に、
面戸スポンジを仕込ませした。

1枚1枚接着剤とブチルテープで綺麗につなぎ合わせて施工していきます。


施工完了✨
施工完了した写真がこちらです📷✨




ジオプラッコあれれ?なんで所々板金が施工されていない箇所があるの?
ワンポイント解説💫箱樋板金塞ぎ工事の注意点とは?

こんにちは一級建築士の名和です🐭
ジオプラッコちゃんいい質問ですね!!
ここでワンポイント解説✨✨✨
今回は、”箱樋板金塞ぎ工事の注意点”について
ご説明させていただきます!
箱樋を板金で塞ぐ際に「排水口(ドレン)部分だけは塞がない」のには、
きちんとした理由があります。
その理由は…【雨水の逃げ道(排水経路)・清掃の確保をするため】です💡
箱樋を塞ぐ目的は、
「箱樋の内部に雨水がたまって漏水・腐食・劣化を防ぐ」ためですが、
完全に塞いでしまうと、雨水がどこにも逃げられず逆流・滞留してしまいます。
さらに、今回の現場では店舗の入口付近にあたる箇所だったため、
雨水が直接落ちるとお客様にかかる可能性がありました💦
そのため、お客様からのご要望も踏まえ、雨水の排水経路と掃除のしやすさを確保するために、落し口は塞がずに残す対応を行いました。
🚫 よくある施工ミスとして、板金で完全に塞ぎ、
排水口をふさいでしまう業者さんもあります💦
こうした施工ミスを防ぐ為にも、しっかりとした業者選びも大切です!!
これで雨漏りの心配もなくなりお客様も大変安心していただけました🐤💕
今回は雨漏り対策として箱樋を塞ぐという方法で対策をさせていただきましたが、
既存の建物の状況に合わせて対策工事も様々です。
当社ジオプランには建物の構造を知り尽くす一級建築士もおりますので
ぜひお任せくださいね💪
今回のように雨漏りを起こしている状態は、
人でいえば“緊急手術が必要な状態”といえます。
放置すると内部の木材や断熱材まで腐食が進み、修繕範囲が大きくなるおそれがあります。
早めに点検を行い、原因を特定して適切な処置を行うことで、被害を最小限に抑えることができます。
「少しシミがある」「天井に違和感がある」と感じたら、早めのご相談をおすすめしています。

\ジオプランおすすめ/※要チェック✅
ジオプランの屋根遮熱通気工法🏠

✅屋根の構造で室内温度が劇的に下がる?一級建築士が在籍する『ジオプラン』の「遮熱通気工法」
代表取締役 名和修お問い合わせ・お見積りは
すべて無料です!
お気軽にご相談ください🐭
スタッフ池田随時情報を更新しております♪クーポン情報も掲載中!
要チェックです🐥


















