今回は、トイレ🚻のリフォーム工事のご依頼をいただき、
工事をさせていただきましたので工事の様子をご紹介いたします!
1.施工前
施工前の写真がこちらです👇


写真をご覧の通り、隅付タンク式の便器で、壁は垂直ストライプの壁紙、床はタイル貼りでした。
開閉時に廊下やトイレ内部のスペースを阻害する開き戸の作りになっておりました。
2.工事内容
今回は、お客様のご要望により全面リフォームをご希望されていましたので、
既存のトイレ設備や内装を撤去し、
使いやすさと安全性に配慮したバリアフリー仕様のトイレへ改修工事を行うことをご提案させていただきました💡


施主様のこれからの暮らしがより快適で安心なものになるよう、
今回のリフォームのポイントを4つの視点で分かりやすくまとめました🎶
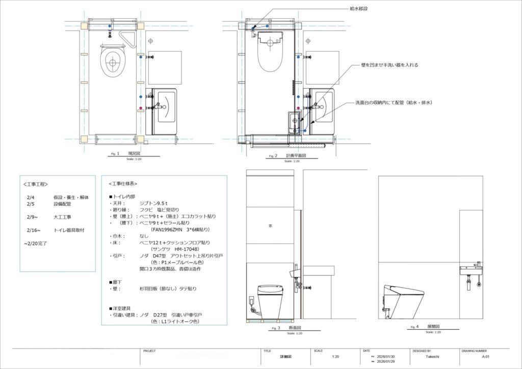
【トイレ本体】 空間の有効活用
- Before: 隅付タンク式の便器。
- After: キャビネット一体型の最新タンクレス風トイレへ。
広々とした開放感のある空間を実現。
【手洗い】 動線の改善と利便性
- Before: 便器後方のタンク上にある小さな蛇口で、
無理な姿勢で手を洗う必要がありました。 - After: 開放感を持たせる為、壁面を凹ませる造作工事を行い、
専用の埋込型手洗い器を新設。
【壁面】 機能性とデザインの両立
- Before: 経年劣化や汚れが気になり始めていた、一般的なストライプ柄の壁紙。
- After: 上部には消臭・調湿効果のある「エコカラット」、
下部にはお掃除が簡単な「セラール」を採用したハイブリッド仕上げを採用。
【出入り口】 安全でスムーズな動線
Before: 開閉時に廊下やトイレ内部のスペースを大きく占有する開き戸。
After: 壁の外側をスライドさせる「アウトセット上吊り片引戸」に変更。
3.養生・解体
まず初めに、既設の壁・トイレを解体していきました。

トイレが使用できなくなる為、
工事に取り掛かる前に
仮設トイレを設置しました🚻


解体作業で発生する、ほこりやゴミなどが他の室内へ侵入し影響を及ぼさないように、
養生もしっかりしたうえで解体作業をしていきました。
4.配管移設工事
解体作業完了後、既存のタンク付きトイレからタンクレストイレへリフォームするため、
排水配管の移設工事を行いました。
床の一部を掘り、新しいトイレの設置位置に合わせて排水管を延長・接続する作業をしました。

実はこの作業であるトラブルが発生😨
床下の掘削(はつり)時に、図面にはない位置に既存の給水管が見つかるトラブルがありました。
しかし現場の職人が状況を確認し、その場で迅速に配管を迂回させる対応を行うことで、工事を安全に進めることができました。
さすが職人さんです👏


5.木下地工事
配管移設工事完了後、床・壁に木下地を施工していきました。


内部にはグラスウール断熱材を隙間なく充填し、ベニヤ下地を施工していきました。


6.内装仕上げ工事・トイレ設備取付
木下地工事完了後、内装仕上げ・トイレ設備の取付作業をしていきました。
天井部分
天井は、『ジプトン9.5t+クロス貼り』を採用をしました。
※当初、ジプトンを採用していましたが、出来上がってきた感じがイメージと違うとのことで、
クロス貼りに変更をしました。当社はお客様のご要望に柔軟に対応していきます💪


内壁・トイレ設備等
壁面は「上下」の機能分離を行いました。
腰上には調湿・脱臭機能を持つ「エコカラット」「モザイクタイル」を、
腰下にはアイカ工業製のセラール「FAN1996ZMN」を採用しました。


また、エコカラットの壁面にはピンク色のミッキーマウスをあしらったアクセントタイル、
壁面を上下に仕切りの役割も兼ねて「モザイクタイル」を貼り、
そのまま手洗い器背面の壁面一面に同じように施工しました!
上質な空間の中に、温かみと遊び心を加え、空間の印象をやさしく引き立てました✨

床のクッションフロアには、
『サンゲツ HM-17048』を採用しました。
また、新設した手洗い器の給排水管が露出して空間の美しさを損なわないよう、
あえて洗面台の収納スペース内に配管を通す設計を採用しました✨


7.建具取付
最後に、建具を取付しました🚪!

ノダ D47型 アウトセット上吊り片引戸
色:P1メープルペール
を採用しました!
上吊り式は床にレールがないため、つまづきの原因を解消し、
足元が不安なご高齢の方でも安全かつスムーズに出入りできます✨


8.施工完了✨
施工完了した写真がこちらです📷✨





今回の工事により、トイレはバリアフリー仕様の快適で美しい空間へと生まれ変わりました💫
使いやすさだけでなく、モザイクタイルなどのデザインにもこだわり、
毎日気持ちよく使える上質なトイレ空間に仕上げることができました🎶
当社ジオプランは、屋根・外壁の専門店として培ってきた確かな技術力と現場対応力を活かし、
今回のような内装リフォームにも柔軟に対応しています💪
屋根や外壁の工事はもちろん、住まいをより快適にするリフォームにも対応しています。
住まいの外まわりから内装まで、お困りごとがありましたらお気軽にご相談くださいね🎵














